REQUEST A TOUR If you would like to see this home without being there in person, select the "Virtual Tour" option and your agent will contact you to discuss available opportunities.
In-PersonVirtual Tour

$ 3,500
$ 3,500
Key Details
Property Type Commercial
Listing Status Active
Purchase Type For Rent
MLS Listing ID 25620289
HOA Y/N No
Year Built 1942
Property Description
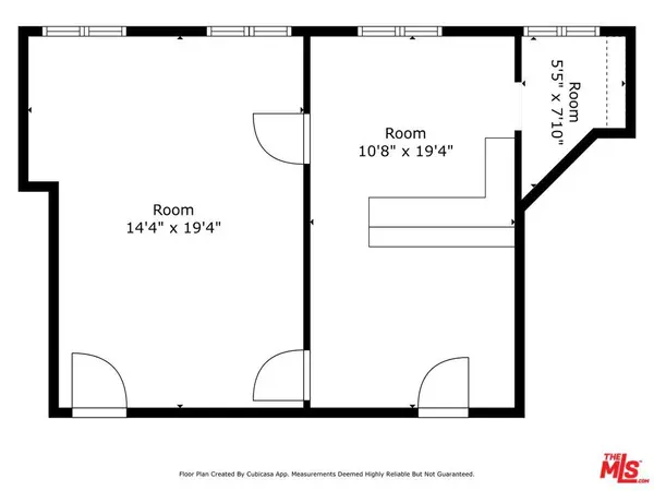
Open House EVERY Tuesday from 10:00am to 2:00pm until 12/31/25.2nd Floor- Suite 202- See Floor Plan Available Now- Full Gross Lease- New Paint, New AC Units, New Lighting Fixtures, New Window Treatments, New Flooring. 700 sq ft-This suite offers a thoughtfully designed layout featuring three versatile rooms, ideal for office, medical or consulting use. Receptionist area, lobby, storage area and one big 2nd room which can be reconfigured 2 entrances. The space is enhanced by natural lighting from well-placed windows and provides two private entrances ( can add more with wall) along with interior connectivity between rooms. Whether you're launching a new venture or expanding your current operations, this suite delivers functionality and comfort in a professional setting. More photos coming soon. Call for more details Teena Anderson 310 499 3765.Special Offer: Look and Lease Special- Sign a lease within 7 days of viewing and receive one month free! Lease Terms 3, 5 -10 year lease options Type of Lease - Full Gross Medical and Office Suites range from 654 Sq Ft - 1012 sq ft
Location
State CA
County Los Angeles
Area C01 - Beverly Hills
Interior
Fireplace No
Laundry None
Building
Lot Description Corner Lot
Story 2
Others
Tax ID UNAVAILABLE
Security Features Fire Detection System,24 Hour Security,Key Card Entry,Smoke Detector(s)

Listed by Teena Anderson Beverly Hills Brokers & Associates
GET MORE INFORMATION







