
3 Beds
2 Baths
1,599 SqFt
3 Beds
2 Baths
1,599 SqFt
Key Details
Property Type Single Family Home
Sub Type Single Family Residence
Listing Status Active
Purchase Type For Sale
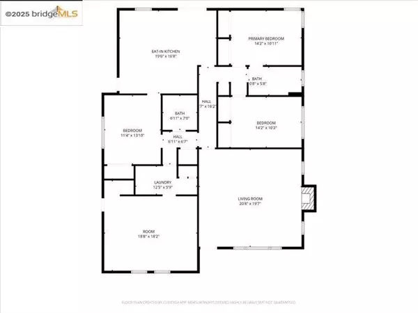
Square Footage 1,599 sqft
Price per Sqft $531
Subdivision Northside
MLS Listing ID 41114329
Bedrooms 3
Full Baths 2
HOA Y/N No
Year Built 1957
Property Sub-Type Single Family Residence
Property Description
Location
State CA
County Alameda
Zoning Resi
Interior
Interior Features Eat-in Kitchen
Heating Forced Air, Natural Gas
Cooling Central Air
Flooring Carpet, Vinyl, Wood
Fireplace Yes
Appliance Gas Water Heater, Washer
Exterior
Parking Features Converted Garage, Off Street, One Space
Pool None
Roof Type Shingle
Accessibility None
Porch Patio
Total Parking Spaces 2
Private Pool No
Building
Lot Description Back Yard, Front Yard, Garden, Street Level, Yard
Story One
Entry Level One
Sewer Public Sewer
Architectural Style Ranch
Level or Stories One
New Construction No
Schools
School District Livermore Valley
Others
Tax ID 982248
Acceptable Financing Cash, Conventional, FHA, VA Loan
Listing Terms Cash, Conventional, FHA, VA Loan
Virtual Tour https://2151ElmSt.com/idx

GET MORE INFORMATION







